龍門加工中心對安裝環境的要求
龍門加工中心的安裝對環境有一定的要求,龍門加工中心自身的外形結構龐大,不能與加工中心等相對較小的機械設備一樣打好水平即可,為了保持龍門的長久使用精度及壽命,請在安裝時做到以下幾點要求:
1、檢查地面的混凝土,不能在有裂縫的位置進行安裝
2、混凝土的最低壓強為1800牛每平方厘米,抗拉強度為180牛每平方厘米。
3、地面的承受強度應大于每平方米5噸。
4、混凝土周圍應加防震材料。

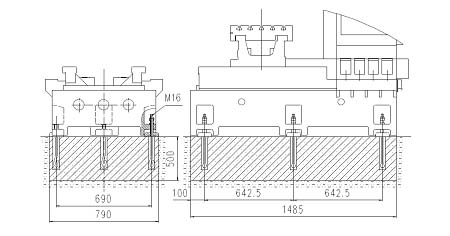
地基的選擇要求
按照地基安裝圖,選擇適當的空間進行安裝龍門加工中心,安裝地基的穩定性不應對機床的精度產生負面影響,但是為防止其他機械裝置的振動通過地面對本機床有影響,地基應有絕對的穩定性和隔震性。
其他注意事項
1、為便于維修及檢查,應在機床安裝位置旁保留適當空間。
2、為了安裝、維護龍門加工中心,應使機床頂部與吊車之間至少有500mm的空間。
3、應提供有足夠的空間來松、夾工件。
4、當安裝龍門加工中心時,應有足夠的空間移動來安裝機床。
依速力機械有限公司專業供應龍門加工中心銷售:13560673059,晏先生。
同類文章排行
- 四軸加工中心可用于哪種類型的工件加工
- 高速VMC850加工中心哪個品牌好
- 模具加工中心什么牌子的好
- 凱恩帝加工中心
- 比較耐用的加工中心選取建議
- 加工模具使用什么加工中心好
- 加工中心能加工生鐵嗎
- 加工中心三軸變四軸
- CNC加工中心多少錢一臺,影響因素有哪些
- 四軸加工中心多少錢一臺,最新四軸加工中心報價
最新資訊文章
您的瀏覽歷史












